7 models of 2-storey villas with nice and modern roofs, with drawings

Here are some samples of beautiful 2-storey roof villas designed in modern style, with drawings, invite you to refer.

Thai 2-storey villa is the choice of many homeowners. With square shapes, minimalist decorative details, 2-storey roof villas with a luxurious beauty, modernity, creating strong sensations for the viewer.

Here are some samples of beautiful 2-storey roof villas designed in a modern style, with drawings attached. Each model of this 2-storey villa is designed with every little detail in order to bring practical value to the homeowner.

1. Sample drawing of a 2-storey roof garden garden villa

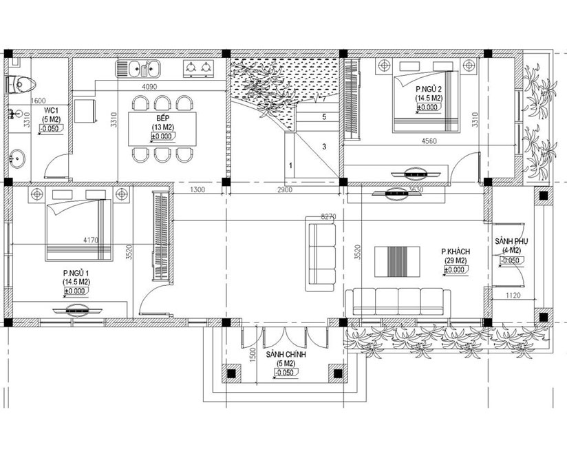
This 2-storey villa model has a floor area of ​​130m2 (10x13m) built on a 400m2 land plot. Around the house there is also a swimming pool and garden to bring coolness.

This 2-storey villa consists of 4 bedrooms, a living room, kitchen, church room and ancillary works.

Picture 3 of 7 models of 2-storey villas with nice and modern roofs, with drawings

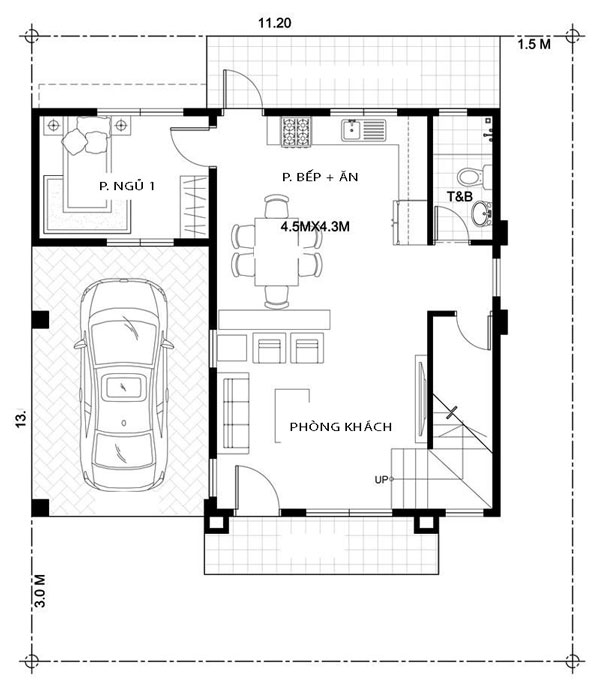
Functional ground floor 1 includes: living room (32m2), kitchen + dining room (20m2), bedroom (20m2), church room (14m2).

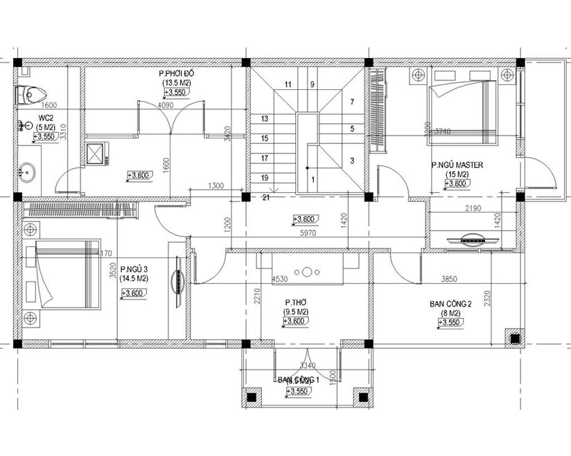
Picture 4 of 7 models of 2-storey villas with nice and modern roofs, with drawings

Functional ground floor 2 includes: 1 common room (22m2), 3 bedrooms (size is 14m2, 17m2 and 18m2), 1 shared wc room, drying yard, balcony.

2-storey villa with an area of ​​130m2 with drawings

This is a two-storey Thai roof villa designed in a youthful and modern style with the front of the house painted in gray and white, combined with decorative wall tiles. Glass door system helps bring natural light into the space of the house.

A part of the roof of the house is leveled to make a balcony and has a place to collect water.

Picture 7 of 7 models of 2-storey villas with nice and modern roofs, with drawings

Functional ground floor 1 includes: living room, bedroom, kitchen + dining room and a shared bathroom.

Picture 8 of 7 models of 2-storey villas with nice and modern roofs, with drawings

Functional ground floor 2 includes: 1 common room, 2 large bedrooms, church room and 1 bathroom.

Sample drawing of a beautiful 2-storey villa with an area of ​​110m2

Picture 9 of 7 models of 2-storey villas with nice and modern roofs, with drawings

This villa is designed with simple architectural shapes that create a sense of health for the viewer.

Picture 10 of 7 models of 2-storey villas with nice and modern roofs, with drawings

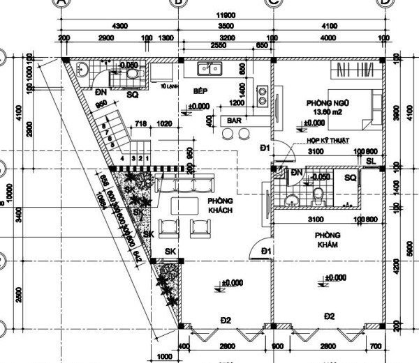
Functional ground floor 1: living room, 1 bedroom, dining room + kitchen, 2 toilets and garage.

Picture 11 of 7 models of 2-storey villas with nice and modern roofs, with drawings

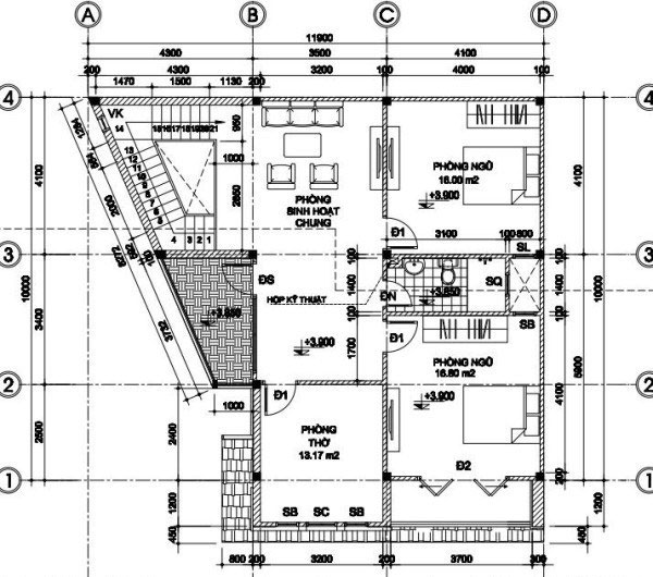
Functional ground floor 2: 3 bedrooms 1 church room, 2 bathrooms.

2-storey villa with nice 4-bedroom roof with drawings

Picture 12 of 7 models of 2-storey villas with nice and modern roofs, with drawings

This 2-storey villa roof is designed in a modern, solid and harmonious style with the surrounding natural landscape.

Picture 13 of 7 models of 2-storey villas with nice and modern roofs, with drawings

Functional ground floor 1: living room, kitchen + dining room, bedroom, car garage, 1 shared toilet.

Picture 14 of 7 models of 2-storey villas with nice and modern roofs, with drawings

Functional ground floor 2 includes 3 bedrooms (1 main bedroom, 2 small bedrooms) and 2 toilets arranged scientifically.

Villa model with 2 floors, square roof

This 2-storey house is designed with a relatively simple structure but it is still beautiful, modern, and never out of date.

This 2-storey villa has an A-shaped roof block and a scientific racing level, creating a nice and airy facade.

Picture 17 of 7 models of 2-storey villas with nice and modern roofs, with drawings

The ground floor layout is simple and scientific with the living room, dining room and kitchen connected to each other to create a spacious space for the house. The first floor also has 1 bedroom, 1 shared toilet and car garage.

Picture 18 of 7 models of 2-storey villas with nice and modern roofs, with drawings

The second floor is spacious and spacious with 2 bedrooms, an extremely spacious balcony.

2-storey villa with roof area of ​​150m2 with 4 bedrooms, with drawings

With only meticulous roadside system, the 2-storey villa is considered beautiful and luxurious.

Picture 21 of 7 models of 2-storey villas with nice and modern roofs, with drawings

Ground floor plan includes living room, 2 bedrooms, kitchen + dining room, shared toilet.

Picture 22 of 7 models of 2-storey villas with nice and modern roofs, with drawings

The ground floor drawing of the 2nd floor includes: a church room, 2 bedrooms, a clothesline, a shared toilet.

2-storey villa with 4-bedroom roof and drawings

This 2-storey roof house model is airy, comfortable but still strong. Separate kitchen and dining room, not arranged indoors.

Picture 25 of 7 models of 2-storey villas with nice and modern roofs, with drawings

Functional ground floor 1 is arranged airy and scientific including the main lobby, living room, master bedroom, 1 small bedroom, shared toilet.

Picture 26 of 7 models of 2-storey villas with nice and modern roofs, with drawings

Functional ground floor 2: Church room, 2 bedrooms, shared toilet, playground.

  1. Samples of beautiful, modern 2-storey villa facades
  2. Design ideas utility stairs beautiful, beautiful and unique

You've just finished reading the article "7 models of 2-storey villas with nice and modern roofs, with drawings" edited by the TipsMake team. You can save 7-models-of-2storey-villas-with-nice-and-modern-roofs-with-drawings.pdf to your computer here to read later or print it out. We hope this article has provided you with many useful tech tips and tricks. You can search for similar articles on tips and guides. Thank you for reading and for following us regularly.

« PREV : How to use Jetdrop...
How to map to Veigar... : NEXT »