Level 4-storey house mezzanine 3 bedrooms

Here are some samples of level 4 houses with mezzanine 3 beautiful bedrooms, scientifically designed to bring spacious living space, avoid cramped, please refer.

Level 4 has a mezzanine 3 bedrooms very suitable for households with many members. Here are some samples of level 4 houses with mezzanine 3 beautiful bedrooms, scientifically designed to bring spacious living space, avoid cramped, please refer.

The model of grade 4 has a mezzanine 3 bedrooms 5 × 20m2

This is a 4-storey model house with a mezzanine 3-bedroom mezzanine design, modern, and low construction costs.

The facade of this loft-level 4-storey house is modernly designed with solid architectural shapes and high aesthetics. Modern stairs are lined with natural stone, the main porch is tiled with white tiles, combined with square pillars on both sides to create a balanced overall work. Thai roof system of the house is designed with modern level.

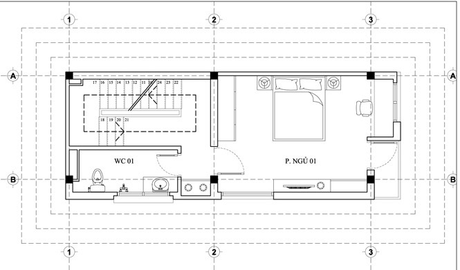
Functional ground floor includes: Living room, mezzanine stairs, kitchen and dining table, shared toilet and 1 bedroom are arranged in the innermost corner of the building.

images 3 of Level 4-storey house mezzanine 3 bedrooms
Images 3 of Level 4-storey house mezzanine 3 bedrooms

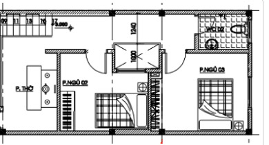
The mezzanine functional ground includes: The worship room is right next to the staircase, the inside is 2 bedrooms and a shared toilet.

images 4 of Level 4-storey house mezzanine 3 bedrooms
Images 4 of Level 4-storey house mezzanine 3 bedrooms

Level 4 has a mezzanine with 3 bedrooms, cheap roofs

The design of a level 4 house has a cheap mezzanine roof in the east, a large courtyard in the front.

images 5 of Level 4-storey house mezzanine 3 bedrooms
Images 5 of Level 4-storey house mezzanine 3 bedrooms

The ground floor space has a floor area of ​​120m2 including: living room, stairs, small skylights, kitchen connected to dining room, 1 bedroom and shared toilet.

images 6 of Level 4-storey house mezzanine 3 bedrooms
Images 6 of Level 4-storey house mezzanine 3 bedrooms

Mezzanine floor is designed with 1 altar room combined with common activities, 2 bedrooms, laundry room, bathroom.

images 7 of Level 4-storey house mezzanine 3 bedrooms
Images 7 of Level 4-storey house mezzanine 3 bedrooms

Level 4 has a mezzanine 3-bedroom roof

images 8 of Level 4-storey house mezzanine 3 bedrooms
Images 8 of Level 4-storey house mezzanine 3 bedrooms

The facade of level 4 houses is designed in a modern style. The main color of the house is blue-gray with white stripes and brown-gray stripes to help the house stand out.

images 9 of Level 4-storey house mezzanine 3 bedrooms
Images 9 of Level 4-storey house mezzanine 3 bedrooms

The ground floor includes: living room, kitchen + dining room, 2 small bedrooms designed in the same to ensure tranquility for rest, in the same toilet as common + small drying yard.

images 10 of Level 4-storey house mezzanine 3 bedrooms
Images 10 of Level 4-storey house mezzanine 3 bedrooms

Ground floor mezzanine: spacious bedroom + WC.

4.3 | 3 Vote
« PREV : How many...
This is a very... : NEXT »